KismarosEladó családi ház

Kép a házról
+12 fotó
Kép a házról
+11 fotó
Kép a házról
+10 fotó

Legfontosabb adatok

Ár

64,9 millió Ft

Alapterület

95 m2

Telekterület

1167 m2

Szobák

3

További információk

Eladó családi ház

Állapot

jó állapot, azonnal költözhető

Építés éve

2011

Emeletek száma

1

Típus

családi ház

Leírás

Fantasztikus lehetőség a Dunakanyarban!
Ha elege van a városi zajból, itt csak a madarak énekét fogja hallani, míg a visegrádi várat szemléli egy kávéval a kezében.
Kismaroson, a János hegyen eladó 95m2-es ( + 12 m2 vendégház+ 50m2 fedett beálló+ 2 tároló+ 7 gk kövezett beálló) PANORÁMÁS,
azonnal költözhető, téglaépítésű családi ház 1176 nm-es telken.
Aszfaltos útról kényelmesen megközelíthető dupla távvezérlésű elektromos kapun át. A két közvetlen telek nem lakott, így nagyon csendes, viszont a többi szomszéd állandó lakos. Pár percre Kismaros központjához
(Az ingatlan közigazgatásilag Nagymaroshoz tartozik, de a valóságban Kismaros határán van. /Szó van róla, hogy Kismaroshoz fog kerülni belterületként./)

A kapun bejutva egy 200 nm-es viacolorral burkolt tér fogad, oldalt fűvel és fával szegélyezve, majd egy fedett 50 nm-es tér tárul elénk. Esőben és rekkenő hőségben is ideális hely összejövetelekhez, vagy csak kinti játékra. Egy nagyobb tároló is található itt. Innen néhány lépcsővel jutunk a lakótérbe.
De maradjunk még a kertnél. A fedett részen áthaladva jutunk a ház mögötti kert részébe, ami így teljesen intim, a külvilágtól elszeparált, csak a természet vesz minket körül. Itt található egy 12 m-es könnyűszerkezetes, szigetelt házikó, amiben 1 szoba, konyha és tusoló kapott helyet, saját fűtéssel és melegvízzel. Mellette egy szerszámos kamra, a kerti eszközöknek.
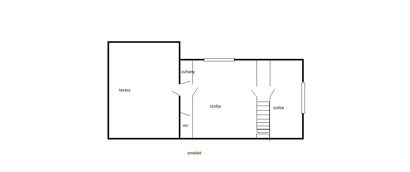
A főépületbe belépve található egy kis előszoba, tágas konyha-étkező 21 m2, egy szép nappali, (Földszint 57 m2) ahonnan az emeletre vezető lépcső is megtalálható, egy káddal és zuhanykabinnal is ellátott fürdőszoba. A tetőtérben 2 szoba, egy wc és egy zuhany lett kialakítva.
A szülői hálón keresztül jutunk ki egy 15m2-es fedett teraszra, ahonnan a visegrádi várra is szép kilátás nyílik, a környező zöld területen kívül.
- fűtés: 2 db Nobo norvég elektromos fűtőpanelek, 3 hűtő-fütő klíma vagy vegyes tüzelésű kazán
- H tarifa, ipari áram, éjszakai áram
- szigetelt, két rétegű nyílászárók
- 10 cm szigetelés
- 3 inverteres klíma
- gyors internet elérés
- víz, villany van
- szép, költözhető állapot
- csatorna, gáz nincs
- Kiépített kamerarendszer
- tágas, száraz pince
Külterület, gazdasági épület besorolású, életvitelszerűen laknak benne egész évben!
Nagymaros és Kismaros határán helyezkedik el, de Kismaros felől gyorsabban megközelíthető.
A vasútállomás autóval vagy kerékpárral is csak pár percnyi távolságra helyezkedik el, ahol a hétköznapokhoz szükséges dolgok és szolgáltatások beszerezhetők
Vasútállomás 2 km
Kismarostól könnyen és gyorsan megközelíthető Budapest, akár vonattal vagy gépkocsival tervezzük a közlekedést.
Autóval Budapest az M2-őn 40 perc, Vác 10 perc
Vonattal 40 perc
További kérdéseivel forduljon hozzám bizalommal!


Amiben még segíthetünk:
-ingyenes, bankfüggetlen hitelügyintézés (CSOK és Babaváró ügyintézése is, falusi CSOK)
-jogi háttér
-energetikai tanúsítvány elkészítése
-biztosítás
- ingatlan eladáshoz ingyenes felmérés

Virtuális séta